随着科技的发展,现如今的电子设备均具有集成化、小型化、精密化等特点,在提高了科学技术的同时,这些精密化的设计在雷电发生时极易造成雷电事故,致使电子设备损毁。在雷电应对措施上,很多人选用了电源防雷器来进行防护,而对于电源防雷器的选型上,很多人存在困扰,那么电源防雷器如何选型呢?
电源防雷器如何选型?
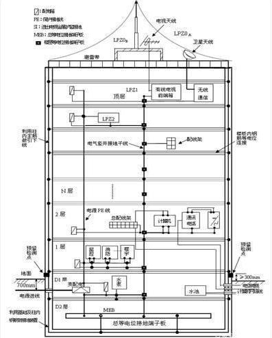
第1级电源防雷器:
电源防雷器如何选型,目的是防止浪涌电压直接从LPZ0区传导进入LPZ1区,将数万至数十万伏的浪涌电压限制到2500-3000V,该级电源防雷器应是连接在用户供电系统入口进线各相和大地之间的大容量电源防雷器。
一般要求该级电源防雷器具备每相100KA以上的大冲击容量,要求的限制电压小于2500V。
第二级电源防雷器:
电源防雷器如何选型,目的是进一步将通过第1级防雷器的残余浪涌电压的值限制到1500-2000V,对LPZ1-LPZ2实施等电位连接。
分配电柜线路输出的电源防雷器作为第二级保护时应为限压型电源防雷器,其雷电流容量不应低于20KA,应安装在向重要或敏感用电设备供电的分路配电处。
这些电源防雷器对于通过了用户供电入口处浪涌放电器的剩余浪涌能量进行更完善的吸收,对于瞬态过电压具有极好的抑制作用。
第三级电源防雷器:
电源防雷器如何选型,是终保护设备的手段,将残余浪涌电压的值降低到1500V以内,保证电源设备免受雷击,在电子信息设备交流电源进线端,安装的电源防雷器,作为第三级保护时应为串联式限压型电源防雷器,其雷电通流容量不应低于10KA。后的防线可在用电设备内部电源部分采用一个内置式的电源防雷器,以达到完全消除微小的瞬态过电压的目的。

电源防雷器如何选型,杭州易造科技有限公司拥有T1-T3级电源防雷器和信号防雷器全系列共500多种规格型号产品,可以满足所有电力系统的需要,产品检测报告齐全,选型方便快捷,可以针对项目需要进行定制化服务。
-End-